
Modulhaus
Modulhaus Tatra
Inspiriert von den Landschaften, die uns geprägt haben, ist Tatra ein Modulhaus, das die ruhige Kraft der polnischen Berge widerspiegelt. Es ist ein Raum, der sich beständig, vertraut und voller stiller Möglichkeiten anfühlt — gemacht für alle, die sich zur Natur und Balance hingezogen fühlen. Mit diesem Modell bringen wir diesen Geist in das modulare Wohnen — eine Verbindung aus solider Handwerkskunst und moderner Funktionalität. Tatra kommt mit einem durchdachten Grundriss, und es gibt Raum für persönliche Akzente. Du kannst einige Details an deinen Lebensstil anpassen, während wir sicherstellen, dass die Seele des Designs wunderschön erhalten bleibt.
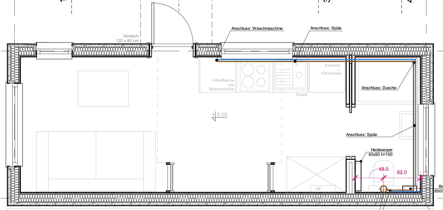
Technische Zeichnungen
inkl. Bauvoranfrage, Wärmeschutznachweis und Standsicherheitsnachweis
Technische Daten
Länge*
7.20 m
Breite
2.78 m
Höhe*
4.07 m
Wohnfläche
42 m²
* Max. Maße pro Modul sind 12m Länge und 4m Breite
Wichtigste Ausstattungsdetails
Garantie
Wir stehen hinter jedem Haus, das unser Werk verlässt – und unsere Premium-Zulieferer auch.
10
Jahre Garantie
Konstruktion, Dach & Fassade
5
Jahre Garantie
Elektro, Wasser & Fenster
2
Jahre Garantie
Vollgarantie auf alle Komponenten
Zulieferer-Garantien unserer Premium-Partner:
60
Jahre Garantie
ThyssenKrupp
25
Jahre Garantie
Quick-Step
10
Jahre Garantie
Vinylit Quattro
💚 Proaktive Betreuung inklusive: Alle 6 Monate reichst du ein kurzes Foto-Update über unser Portal ein – wir geben dir Feedback und Pflegetipps. So bleibt deine erweiterte Garantie durchgehend aktiv. Verpasst du mal einen Termin, ruht sie nur bis zur Nachholung – sie verfällt nicht.
Weil ein Zuhause kein Wegwerfprodukt ist.
Dieser Inhalt ist blockiert, weil du keine Marketing-Cookies akzeptiert hast.
Cookies akzeptieren zum Ansehen
Dein Weg zum Berghaus
In 7 Schritten zu deinem Traumhaus
Erstberatung
Wir nehmen alle Wünsche und Details auf und geben eine erste Preisindikation
Baurechtliche Klärung
Kostenlose baurechtliche Analyse und bei Bedarf Bauvoranfrage durch unsere Spezialisten, alle Möglichkeiten werden aufgezeigt
Konfiguration
Gemeinsame Gestaltung + Zugang zum Kundenportal
Vertrag & Anzahlung
Transparente Konditionen, Zahlung nach Baufortschritt
Produktion
Fertigung in unserer Manufaktur, Live-Tracking im Portal
Freigabe & Lieferung
Europaweit, optional mit Vor-Ort-Montage
Service & Garantie
Bis zu 10 Jahre Garantie, persönlicher Support im Portal
Erstberatung
Wir nehmen alle Wünsche und Details auf und geben eine erste Preisindikation
Baurechtliche Klärung
Kostenlose baurechtliche Analyse und bei Bedarf Bauvoranfrage durch unsere Spezialisten, alle Möglichkeiten werden aufgezeigt
Konfiguration
Gemeinsame Gestaltung + Zugang zum Kundenportal
Vertrag & Anzahlung
Transparente Konditionen, Zahlung nach Baufortschritt
Produktion
Fertigung in unserer Manufaktur, Live-Tracking im Portal
Freigabe & Lieferung
Europaweit, optional mit Vor-Ort-Montage
Service & Garantie
Bis zu 10 Jahre Garantie, persönlicher Support im Portal
Erstberatung
Wir nehmen alle Wünsche und Details auf und geben eine erste Preisindikation
Baurechtliche Klärung
Kostenlose baurechtliche Analyse und bei Bedarf Bauvoranfrage durch unsere Spezialisten, alle Möglichkeiten werden aufgezeigt
Konfiguration
Gemeinsame Gestaltung + Zugang zum Kundenportal
Vertrag & Anzahlung
Transparente Konditionen, Zahlung nach Baufortschritt
Produktion
Fertigung in unserer Manufaktur, Live-Tracking im Portal
Freigabe & Lieferung
Europaweit, optional mit Vor-Ort-Montage
Service & Garantie
Bis zu 10 Jahre Garantie, persönlicher Support im Portal
Bereit für dein Berghaus?
Starte jetzt mit einer kostenlosen Erstberatung. Wir nehmen uns Zeit für deine Wünsche, klären die baurechtlichen Möglichkeiten an deinem Standort und zeigen dir, was möglich ist – unverbindlich und persönlich.
Keine Warteliste. Kein Verkaufsdruck. Nur ehrliche Beratung.
Zusätzliche Extras
Interesse an diesem Modell?
Kontaktiere uns, um mehr über Preise, Anpassungsoptionen und Lieferzeiten zu erfahren.
Informationen anfordern









