
Tiny House
Tiny House Vaalserberg
50°45′19″N 6°01′03″E
Der Vaalserberg mit seinen knapp 325m ü. M ist ganz unscheinbar. Unser Modell ist wie das gleichnamige Gebirge im Dreiländereck zwischen Deutschland, Belgien und den Niederlanden zwar eins der kleineren Modelle, dafür aber überall zu sehen! Denn er ist wendig und fühlt sich überall wohl, speziell auch auf der Straße und kann sehr gut mit unserer Photovoltaik und unseren Wassertanksystemen kombiniert werden für autarkes Wohnen. Vaalserberg bedeutet Freiheit.
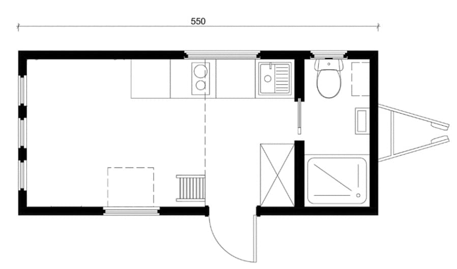
Grundriss

Erdgeschoss

Obergeschoss
inkl. Bauvoranfrage, Wärmeschutznachweis und Standsicherheitsnachweis
Technische Daten
Länge
5.40 m
Breite
2.55 m
Höhe
3.99 m
Wohnfläche
14.4 m²
Wichtigste Ausstattungsdetails
Garantie
Wir stehen hinter jedem Haus, das unser Werk verlässt – und unsere Premium-Zulieferer auch.
10
Jahre Garantie
Konstruktion, Dach & Fassade
5
Jahre Garantie
Elektro, Wasser & Fenster
2
Jahre Garantie
Vollgarantie auf alle Komponenten
Zulieferer-Garantien unserer Premium-Partner:
60
Jahre Garantie
ThyssenKrupp
25
Jahre Garantie
Quick-Step
10
Jahre Garantie
Vinylit Quattro
💚 Proaktive Betreuung inklusive: Alle 6 Monate reichst du ein kurzes Foto-Update über unser Portal ein – wir geben dir Feedback und Pflegetipps. So bleibt deine erweiterte Garantie durchgehend aktiv. Verpasst du mal einen Termin, ruht sie nur bis zur Nachholung – sie verfällt nicht.
Weil ein Zuhause kein Wegwerfprodukt ist.
Dieser Inhalt ist blockiert, weil du keine Marketing-Cookies akzeptiert hast.
Cookies akzeptieren zum Ansehen
Dein Weg zum Berghaus
In 7 Schritten zu deinem Traumhaus
Erstberatung
Wir nehmen alle Wünsche und Details auf und geben eine erste Preisindikation
Baurechtliche Klärung
Kostenlose baurechtliche Analyse und bei Bedarf Bauvoranfrage durch unsere Spezialisten, alle Möglichkeiten werden aufgezeigt
Konfiguration
Gemeinsame Gestaltung + Zugang zum Kundenportal
Vertrag & Anzahlung
Transparente Konditionen, Zahlung nach Baufortschritt
Produktion
Fertigung in unserer Manufaktur, Live-Tracking im Portal
Freigabe & Lieferung
Europaweit, optional mit Vor-Ort-Montage
Service & Garantie
Bis zu 10 Jahre Garantie, persönlicher Support im Portal
Erstberatung
Wir nehmen alle Wünsche und Details auf und geben eine erste Preisindikation
Baurechtliche Klärung
Kostenlose baurechtliche Analyse und bei Bedarf Bauvoranfrage durch unsere Spezialisten, alle Möglichkeiten werden aufgezeigt
Konfiguration
Gemeinsame Gestaltung + Zugang zum Kundenportal
Vertrag & Anzahlung
Transparente Konditionen, Zahlung nach Baufortschritt
Produktion
Fertigung in unserer Manufaktur, Live-Tracking im Portal
Freigabe & Lieferung
Europaweit, optional mit Vor-Ort-Montage
Service & Garantie
Bis zu 10 Jahre Garantie, persönlicher Support im Portal
Erstberatung
Wir nehmen alle Wünsche und Details auf und geben eine erste Preisindikation
Baurechtliche Klärung
Kostenlose baurechtliche Analyse und bei Bedarf Bauvoranfrage durch unsere Spezialisten, alle Möglichkeiten werden aufgezeigt
Konfiguration
Gemeinsame Gestaltung + Zugang zum Kundenportal
Vertrag & Anzahlung
Transparente Konditionen, Zahlung nach Baufortschritt
Produktion
Fertigung in unserer Manufaktur, Live-Tracking im Portal
Freigabe & Lieferung
Europaweit, optional mit Vor-Ort-Montage
Service & Garantie
Bis zu 10 Jahre Garantie, persönlicher Support im Portal
Bereit für dein Berghaus?
Starte jetzt mit einer kostenlosen Erstberatung. Wir nehmen uns Zeit für deine Wünsche, klären die baurechtlichen Möglichkeiten an deinem Standort und zeigen dir, was möglich ist – unverbindlich und persönlich.
Keine Warteliste. Kein Verkaufsdruck. Nur ehrliche Beratung.
Zusätzliche Extras
Interesse an diesem Modell?
Kontaktiere uns, um mehr über Preise, Anpassungsoptionen und Lieferzeiten zu erfahren.
Informationen anfordern